原以为“跑道房”只存在于电视机里,没想到现实生活中的户型居然更奇葩。
从装修前的被人嫌弃,到改造后的“人见人夸”,让我们见证了设计的魅力。
本期要为大家分享的,是一位北京夫妻的70㎡的家。由于户型比较奇怪,这套房子历经了无数客户,却一直没人愿意入手,价格也是一降再降。
屋主考虑到房子的地段不错,售价也降到了心理预期,于是便买下来了。身边的朋友都认为屋主一定会后悔的,但直到他们看到房子装修改造后的样子,忍不住纷纷点赞!
话不多说,赶快一起来参观下屋主的新家吧!

▲装修实拍图
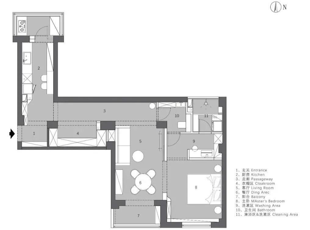
//户型分析//
①面积70㎡,一居室的户型,室内有一条昏暗的长走道,空间利用率很低。
②客餐厅位于房子的最内侧,卧室靠近走道,动线布置得不合理。
③室内有两个卫生间,但都是暗卫,没有窗户,显得狭小拥挤。

▲户型平面图
//设计亮点//
①半开放式厨房,定制“一字型”橱柜,对面做吧台,提升功能性;利用北向的生活阳台,做封闭式烹饪区,避免油烟飘入室内。
②把走廊旁边的卫生间,改造为衣帽间,增加屋内的储物空间。
③调整卧室和客餐厅的位置,让休憩空间更加私密。
④卫生间利用走廊空间来扩充面积,并实现了“四分离式”的布局。

▲装修平面图
玄关
入户有独立玄关,屋主并没有做大型储物柜,而是在进门后的右手边,定制了悬浮式储物台,可以收纳一些随身小物件。
端景墙面悬挂了一个异形穿衣镜,既能方便屋主出门前整理依然,又可以起到装饰空间和放大空间感的作用。

▲玄关实拍图
厨房
厨房紧挨着玄关,也是一个狭长的空间,连接着北向小阳台。
屋主做了开放式厨房,橱柜采用“一字型”布局,与储物高柜相连,冰箱做了嵌入式设计。橱柜的对面规划了小吧台和五斗柜,提升了厨房的功能性。
值得一提的是,屋主把厨房的烹饪区挪到了阳台,炒菜时可以关上玻璃门,避免油烟飘入室内。

▲厨房实拍图
走廊
走廊狭长昏暗,没有自然采光,为了缓解缺陷,屋主做了以下两点处理:
①把旁边的卫生间,改为开放式衣帽间,可以提升走廊的空间感。
②在走廊布置丰富的灯光,通过筒灯、壁灯、灯带来提升照明层次感。

▲走廊实拍图
改造后的走廊,更像是一条艺术长廊,连接着入户和室内空间,颇具仪式感。
走廊尽头,是卫生间的其中一个入口,为了避免尴尬,屋主特意做了隐形门。

▲走廊实拍图
餐厅
餐厅和客厅在同一个空间内,调整到了原主卧的位置,动线更加流畅合理。
墙面刷奶油白色的乳胶漆,地面用鱼骨纹拼法铺暖木色地板,天花板做一圈雕花石膏线,尽显舒适温柔的氛围感。

▲餐厅实拍图
阳台和餐厅之间不做隔断,垭口做了圆角处理,让自然光可以毫无阻碍地照进屋内。
餐厅旁边的卧室,安装了水波纹玻璃移门,既兼顾了美观和私密性,又可以让两个空间共享采光。

▲餐厅实拍图
餐厅被屋主布置得很浪漫,吉他上墙、柜子里的唱片和美妙的音符,让人很难不爱!

▲餐厅实拍图
客厅
客厅采用了无主灯设计,取消茶几和电视柜,墙面也做了大面积的留白,让小空间也能看起来宽敞又通透。
壁画电视靠墙摆放,画质非常棒,极窄的白框、简洁干练,可以起到装饰空间的作用。

▲客厅实拍图
沙发的右侧墙面,借用了衣帽间的面积,定制壁龛柜,用来收纳书籍和藏品。

▲客厅实拍图
卧室
卧室
是一个很有睡眠氛围的空间,处于房子的最内侧,很安静,灯光设置得也非常柔和,一点儿也不刺眼。
吊灯悬挂在卧室天花板的中间,造型很像中国结,寓意着团团圆圆、阖家欢乐。

▲卧室实拍图
床是箱体结构,底部有一定的储物空间,可以收纳过季的衣服和被褥。

▲卧室实拍图
屋主取消了传统对称式的床头柜布局,替换成落地灯和角几,更有设计感!

▲卧室实拍图

▲卧室实拍图
大床对面的墙壁上,设计了壁龛展示区,这里摆放了很多藏品和照片,也成为了家里一道亮丽的风景线。

▲卧室实拍图
床的右侧是卫生间的干区,屋主巧妙地用拱形门洞,来
提升了室内的趣味性和通透感。

▲卧室实拍图
卫生间
“四分离式”的卫生间布局,合理划分了马桶间、淋浴间、洗手台和清洗区,动线一气呵成,实用性更强。
洗手台与卧室相邻,台面空间很充足,侧面是开放式柜格,同时也兼顾了梳妆台的功能。

▲卫生间实拍图
淋浴区也做了干湿分离的设计,外置洗烘两件套,洗完澡后可以顺手洗衣服,太方便了!

▲卫生间实拍图
【本期总结】
虽然和常规的户型相比,屋主家的空间利用率还是低了不少,但改造之后的房子,舒适性和功能性都得到了提升。合理的装修改造,可以化缺陷为优势,这大概就是设计的魅力吧!如果你也喜欢本期内容,欢迎点赞收藏!